Az Év Irodája Evolúciós díj

Balasys 2.0

Adatlap megosztása

Cím 1117 Budapest, Alíz utca 4.

Átadás éve: 2019 Q1

Ingatlan mérete 220 m²

Irodában dolgozók száma 24

Főbb ügyfelek, referenciák BALASYS IT Kft.

Kivitelezés / Fitout

DekoRatio Branding & Design Studio

Tervezés / belsőépítészet

LEVEL UP Office Design

Kivitelezés / Fitout

Amelis Fővállalkozó Kft.

Irodabútor

Vivax / IDdesign

Növénydekoráció

Decorum

Világítástechnika

Lumo Concept

Kivitelezés / Fitout

Decorfloor Kft. - padlóburkolatok

Rövid bemutatkozás

A Balasys 2017-ben költözött az Office Garden III. Irodaházba. Dinamikus fejlődésüknek
köszönhetően hamar kinőtték a frissen kialakított irodateret. További bővülésre az egy szinttel
lejjebbi szabad terület adott lehetőséget. A földszinti bérlemény speciális adottságai, a nagy
belmagasság, a mennyezetig érő üvegportálok, új lehetőségeket, ugyanakkor kihívást is jelentettek a tervezőcsapatnak.


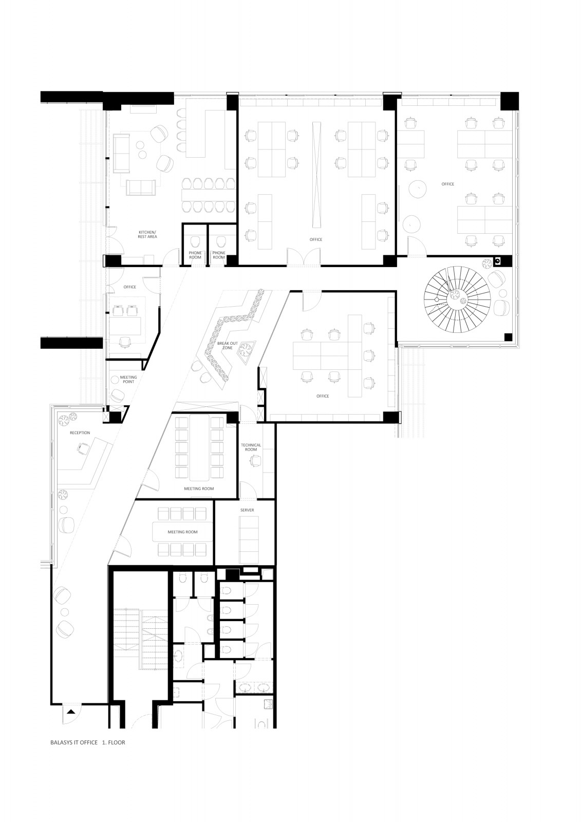
A spaceplan kialakításakor legfontosabb szempont a munkavállalók komfortjának biztosítása volt. Így került az iroda központi, legsötétebb részére a kék üvegkocka tárgyaló “akvárium”, szabadon hagyva a világosabb területeket a munkaállomásoknak. Az építészeti kialakítás csak open office elrendezés mellett tette lehetővé a szükséges létszám elhelyezését. A funkcionális kényelem megteremtése kihívás egy teljesen nyitott térben. A szeparációt különböző térelválasztók alkalmazásával oldotta meg a tervező, melyek tárolóként/üzenőfalként is funkcionálnak, ugyanakkor áttörtségükkel biztosítják az iroda átláthatóságát. A nagy belmagasságú, nyitott, üvegfalakkal határolt tér akusztikai problémáinak orvoslására egyedi hangelnyelő falburkolat és kiemelkedő akusztikus paraméterekkel rendelkező úszó álmennyezeti szigetek kerültek kialakításra.


Okok, amiért a díjra érdemes

Az új kialakítás a korábbi sikeres projekt közreműködőinek részvételével valósult meg. A fenti iroda anyaghasználata, motívumai újragondolva köszönnek vissza, szoros kapcsolatot teremtve a két tér között. Ilyen például a logóból kiemelt hatszög motívum, melyet a tapétán, falburkolaton és az üvegfóliázáson is felfedezhetünk.


A két szintet összekötő Balasys-kék acél csigalépcső meghatározó belsőépítészeti elemként
funkcionál. A lépcsőtérnek külön funkciót adva, az irodabútorok világától elrugaszkodva került
kialakításra a közösségi tér. A gondosan kiválasztott, álpadlóba süllyesztett nagyméretű növények és függesztett fotelek teremtenek igazi trópusi hangulatot a kikapcsolódáshoz.
A hatalmas homlokzati üvegfelületek plusz lehetőséget adtak designelemek megjelenítésére. A
vállalat grafikusa által tervezett design visszafogottan jeleniti meg a cég arculati elemeit, ugyanakkor a karakteres világítással kiegészítve vonzza a járókelők figyelmét.


A megrendelő design iránti elkötelezettsége az emeleti területhez hasonlóan itt is megmutatkozik. A LEVEL UP office design csapatával szorosan együttműködve sikerült a terület adottságait maximálisan kihasználni.


_


Interior branding: Ferenczi Gábor
Fotó: Bulyovcsity Fábián