Az Év Tervezett Kereskedelmi Projektje

DREHER PALOTA

Adatlap megosztása

Cím 1053 Budapest, Ferenczy István utca 20.

Átadás éve: 2027

Ingatlan mérete 1500 m²

Rövid bemutatkozás

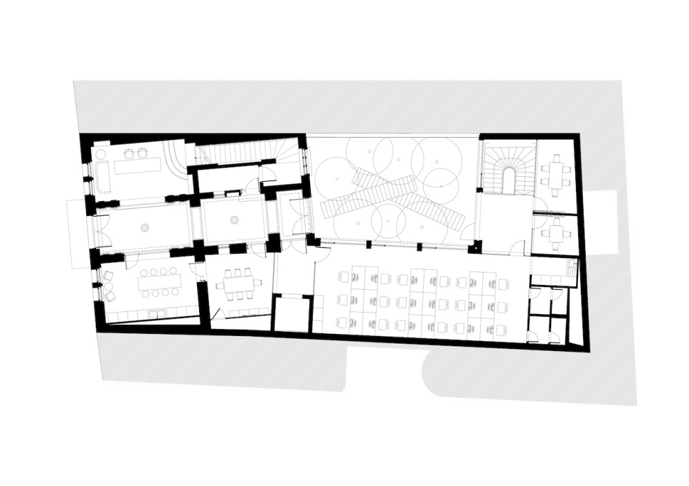
A Dreher Palota Budapest szívében, az V. kerületben, közvetlenül a Károlyi kertre néző, védett neoreneszánsz palota, amely a Dreher család – egészen 1947-ig Dreher Jenő – téli rezidenciájaként szolgált. A projekt célja egy kortárs, magas minőségű irodaépület létrehozása a történeti értékek megőrzésével és újraértelmezésével.


A fejlesztés során az utcai, védett homlokzat és a reprezentatív traktus megmarad, míg a hátsó épületrész helyén egy -2 pinceszinttel és +4 emeletes, modern irodatraktus épül. Az udvar zöld kertként kapcsolódik a Károlyi kerthez, vizuálisan és térben is megnyitva a tömb belsejét. A megtartott utcai szárnyban reprezentatív tárgyalók, a modern traktusban munkaállomások és irodák, a tetőtérben kollaborációs terek, a pinceszinteken gépészet és konferenciaterem kap helyet.


Okok, amiért a díjra érdemes

A Dreher Palota projektje példaértékű válasz arra, hogyan lehet Budapest egyik legértékesebb történeti helyszínén valódi 21. századi munkahelyet létrehozni anélkül, hogy az örökségi értékek sérülnének. A projekt egyszerre épít lokációra, történetre, építészeti minőségre és üzleti racionalitásra.


Lokáció és megközelíthetőség
A Károlyi kert közvetlen szomszédsága, az V. kerület belső része, kiváló tömegközlekedési és kerékpáros elérhetőség mellett, Budapest egyik legkeresettebb irodai mikrolokációja. A zöldfelületre néző irodák ritka minőséget képviselnek a belvárosban, amely nemcsak presztízst, hanem valós munkavállalói élményt is nyújt.


Örökség és kortárs építészet integrációja
A projekt tudatosan választja szét és mégis kapcsolja össze a történeti és kortárs rétegeket. Az utcai, védett neoreneszánsz homlokzat és reprezentatív terek megtartása biztosítja az épület identitását, míg az udvari oldalon létrejövő új irodatraktus korszerű szerkezeti, energetikai és térszervezési megoldásokat alkalmaz. Az új épületrész nem versenyez, hanem kiegészíti a történeti tömeget – az utcáról nem látható módon, mégis jelentős alapterület-növekedést biztosítva.


Innovatív térszervezés és szolgáltatások
A funkcionális elrendezés világos és logikus:
– a piano nobile és utcai traktus reprezentatív tárgyaló- és közösségi terei üzleti találkozókra és vendégfogadásra alkalmasak;
– a hátsó traktus rugalmasan alakítható munkaállomásokat és irodákat kínál;
– a tetőtér kollaborációs és közösségi funkciókat kap;
– a -2 pinceszinten konferenciatér és gépészet biztosítja a modern irodaházi működést.


Az udvar zöld kertként való kialakítása a Károlyi kert „befolyatása” a tömb belsejébe, amely nemcsak vizuális érték, hanem a mentális jóllétet is támogató munkahelyi környezet.


Fenntartható üzleti és városi modell
A Dreher Palota nem spekulatív fejlesztés: hosszú távra tervezett, értékálló befektetés, amely a minőségi bérlői igényeket szolgálja ki. A projekt bizonyítja, hogy a műemléki környezet nem akadálya, hanem katalizátora lehet a magas színvonalú kereskedelmi ingatlanfejlesztésnek. A történeti épület újrahasznosítása városi léptékben is fenntarthatóbb alternatíva, mint az új építésű irodaházak.


Összegzés
A Dreher Palota olyan tervezett kereskedelmi projekt, amely Budapest egyik legjobb helyén, példaértékű építészeti minőséggel, innovatív térhasználattal és világos üzleti koncepcióval hoz létre korszerű irodai környezetet. Nem csupán irodaház, hanem városi gesztus: múlt és jelen tudatos, értékteremtő összekapcsolása.


Tervezők

PYXIS NAUTICA
Tótszabó Tamás
Kis Ferenc